Imagine 121

Apartament 4 camere - MOXA (Calea Victoriei)

Aceasta proprietate a fost deja inchiriata! Pentru oferte similare contactati agentul
ID: P227813 Bucuresti, Calea Victoriei 108
1.250€
Descriere
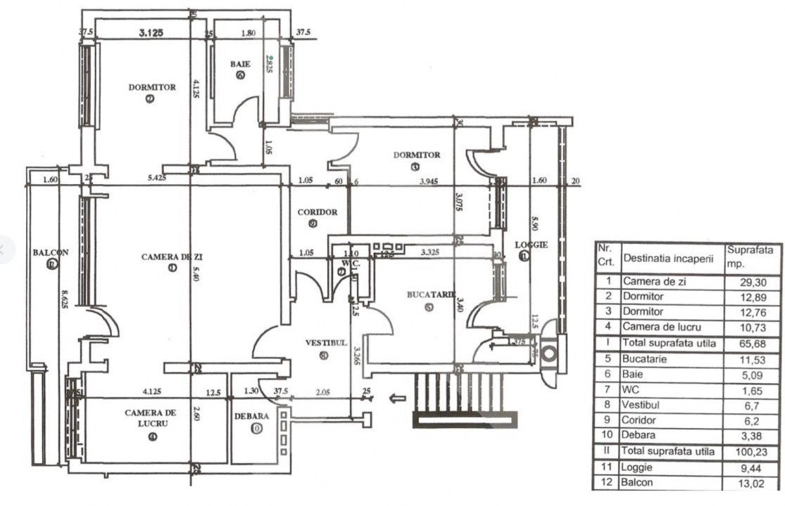
Inchiriere apartament 4 camere - MOXA (Calea Victoriei). Va prezentam un apartament foarte generos ca suprafata si foarte bine compartimentat. Apartamentul este pretabil a fi inchiriat atat ca locuinta cat si ca birou de firma. In proximitate avem Calea Victoriei si parcul Nicolae Iorga. Metroul Victoriei este la aproximativ 5 minute de mers pe jos.
Caracteristici
  • ID:P227813
  • Nr. camere:4
  • Nr. dormitoare:3
  • S. utila:123.00 mp
  • S. terase:23.00 mp
  • S. utila totala:123.00 mp
  • Comp.:Decomandat
  • Confort:1
  • Etaj:Etaj 2
  • Nr. bucatarii:1
  • Nr. bai:2
  • Nr. balcoane:1
  • An constructie:1945
  • Structura:Beton
  • Tip imobil:Bloc
  • Regim inaltime:S+P+4
  • Avans:1250
  • Garantie:1250
Specificatii
Curent
Apa
Canalizare
Gaz
CATV
Telefon
Acces internet
Fibra optica
Utilitati in zona
Centrala proprie
Calorifere
Aer conditionat
Vopsea lavabila
Parchet
Gresie
Ferestre Lemn
Jaluzele Orizontale
Rulouri Lemn
Usa intrare Lemn
Usa interior Lemn
Terasa
Wc serviciu
Debara
Dressing
Bucatarie Mobilata
Bucatarie Utilata
Apometre
Contor gaz
Partial mobilat
Interfon
Localizare
Claudiu Hațegan
Broker Owner
Esti interesat de aceasta proprietate ?
Proprietati similare
TOP 0% comision Exclusivitate Imagine 2012
Unirii Piata Constitutiei, prima inchiriere, parcare
Bucuresti, P-ta Unirii 1.100€
2 camere 1 baie 40mp
TOP 0% comision Rep. exclusiva Imagine 1417
APARTAMENT BOUTIQUE | CURTE PROPRIE | PARCARE | COMPLET ECHIPAT
Bucuresti, Mitropolie 1.250€
4 camere 1 baie 108mp