Imagine 121

Vanzare apartament 2 camere - Micro 1 (fosta Cantina) (Comision ZERO)

ID: P249279 Hunedoara, Central 74
46.500€
Descriere
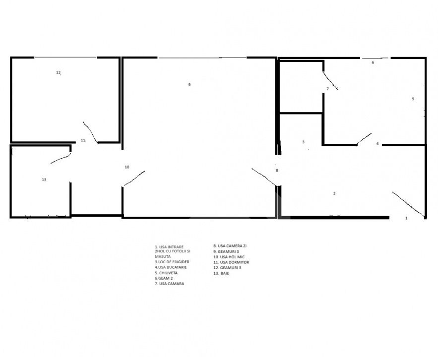
Vanzare apartament 2 camere - Micro 1 (fosta Cantina) (Comision ZERO). Va prezentam un apartament cu 2 camere, la parterul unui bloc cu 3 etaje de pe Bld Republicii, cu vedere spre bulevard. Proprietatea este potrivita atat pentru locuinta cat si pentru transformare in birou / spatiu comercial, avand un vad foarte bun. Apartamentul necesita renovare, exceptie dormitorul care a fost renovat in 2023 (inclusiv are montat termopan). Proprietatea poate fi vizitata oricand, este libera si poate fi predata imediat dupa vanzare.
Caracteristici
  • ID:P249279
  • Nr. camere:2
  • Nr. dormitoare:1
  • S. utila:45.00 mp
  • S. utila totala:45.00 mp
  • Comp.:Semidecomandat
  • Confort:1
  • Etaj:Parter
  • Nr. bucatarii:1
  • Nr. bai:1
  • An constructie:1962
  • An renovare:2023
  • Structura:Caramida
  • Tip imobil:Bloc
  • Regim inaltime:P+3
  • Orientare:Vest
  • Clasa energetica:B
  • Consum specific:142.16
  • Indice emisii:49.09
Specificatii
Curent
Apa
Canalizare
CATV
Telefon
Acces internet
Fibra optica
Izolatie Interior
Vopsea lavabila
Faianta
Parchet
Ferestre PVC
Ferestre Termopan
Usa intrare Lemn
Usa interior Celulare
Debara
Bucatarie Mobilata
Bucatarie Utilata
Apometre
Partial mobilat
Interfon
Localizare
Claudiu Hațegan
Broker Owner
Esti interesat de aceasta proprietate ?
Proprietati similare
TOP 0% comision Rep. exclusiva Imagine 1242
CISMIGIU - BERZEI, MANSARDA NEAMENAJATA, 118 MP, IN INIMA CAPITALEI!
Bucuresti, Cismigiu 50.000€
6 camere 125mp